En Venta
Venta Casa Boedo, Caba - Multifamiliar Y/o Uso Profesional - Acepta permutas, Ofertas Razonables
Código: 195522

Tarija 4125, C1253ACQ Cdad. Autónoma de Buenos Aires, Argentina, Boedo, Capital Federal, Argentina.

USD690.000

Casa
Compartir esta Propiedad

Descripción de la Propiedad

¿Buscando un hogar elegante, cómodo y funcional? Tu próxima casa te está esperando

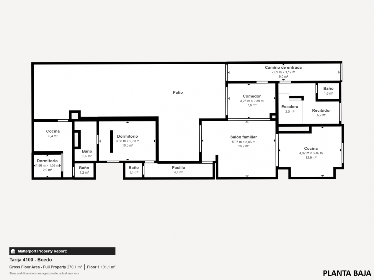
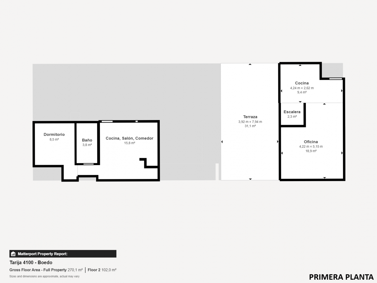
Te presentamos esta hermosa propiedad sobre un lote de 8,20 x 21,34 mts.
9 ambientes (vivienda principal, oficina y 3 departamentos independientes, 5 baños completos, 1 toilette, patio con parrilla, terraza y gimnasio) totalizan 239 m2cubiertos en 329 m2 totales, que combinan amplitud, luminosidad y diseño moderno, ubicada estratégicamente para facilitar tu vida diaria. Con la opción de poder tener tu propia oficina y trabajar sin moverte de tu casa. Además, cuenta con 4 departamentos propios, para convertirla en una casa multifamiliar, cuyo centro, es el bellísimo patio en planta baja que es el núcleo de toda la propiedad. Cuenta, también, con una espectacular terraza y un gimnasio para que no tengas objeciones a la hora de entrenar.

En fin, todo en un mismo lugar, sin salir a la calle.

Detalles destacados:

* Confort excepcional: Disfruta de sus espacios diseñados para tu comodidad. El living cuenta con una iluminación natural espectacular y detalles decorativos que harán de
tus momentos en casa una experiencia inolvidable.

* Sobre una construcción tradicional, grifería de primera marca, duchas monocomando con transferencia, extractores de cocina con sistema dual, acabados de detalles premium, diseños de muebles de cocina exclusivos y funcionales, carpinterías metálicas a medida, cañería principal de hidrobronz soldado con plata.

* Ambientes amplios y luminosos: Cada rincón de esta casa está pensado para aprovechar la luz natural, creando ambientes cálidos y acogedores.

* Ubicación privilegiada: Situada en una zona tranquila pero con acceso inmediato a las principales autopistas, lo que te permitirá conectarte fácilmente con cualquier parte de la ciudad.

* Diseño abierto y funcional: La distribución fluida te permitirá disfrutar de reuniones familiares y aprovechar al máximo cada espacio.

* Ubicación: Cercanía a áreas verdes, colegios, comercios y acceso rápido a autopistas

Mas detalles
  • Acepta mascotas
  • Balcon
  • Luminoso
  • Patio
  • Apto profesional
  • Comedor
  • Terraza
  • Servicios Compartidos
  • Agua Corriente
  • Cloacas
  • Electricidad
  • Tendido Eléctrico
  • Red Gas Natural
  • Apto Crédito
  • Dependencia de servicio
  • TV por cable
  • Internet / Wifi
  • Balcón terraza
  • Antigüedad 15 años
Ver video de la propiedad